Pegram Hall Assessment and Renovation Study
Winston-Salem State University
Winston-Salem, NC
Winston-Salem, NC
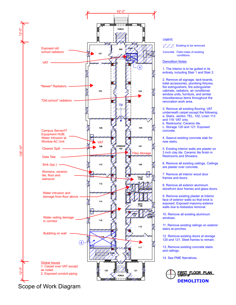
The project was an Existing Conditions Assessment and Renovation Study for Site, Architectural, PME/FP systems, and Code Compliance. The Final Report included a detailed Cost Estimate for full renovation that included Exterior Envelope Remediations, Elevator Addition, Interior Upfit and PME/FP and IT systems for future Administrative Use. The Building’s original use was a Dormitory.
WSSU determined that it was financially feasible to renovate the Building instead of replacing it.
Size: 24,500 sf. (4 Stories)
Principal in Charge: Barbara D. Lane, AIA








