Beatties Ford Road Branch Library Expansion
Charlotte Mecklenburg Library
Charlotte, NC
Charlotte, NC
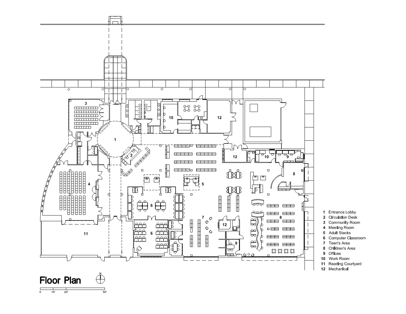
The project included an Addition and extensive Renovations to the Original Building. The Scope was needed to address increased patronage, current library technologies and Original Building “wear and tear”. The goals included an Open Plan with minimal shelving, additonal computer resource areas and “freshening” the interior finishes.
Barbara Lane was the Project Architect for the Original Building.
Size: 19,500 sf.
Project Manager/Architect: Barbara D. Lane, AIA
Firm: Gantt Huberman Architects
Photographers: Joel Lassiter and Gordon Schenck






