CREW and Project Uplift
Mecklenburg County Asset and Facility Management
Charlotte, NC
Charlotte, NC
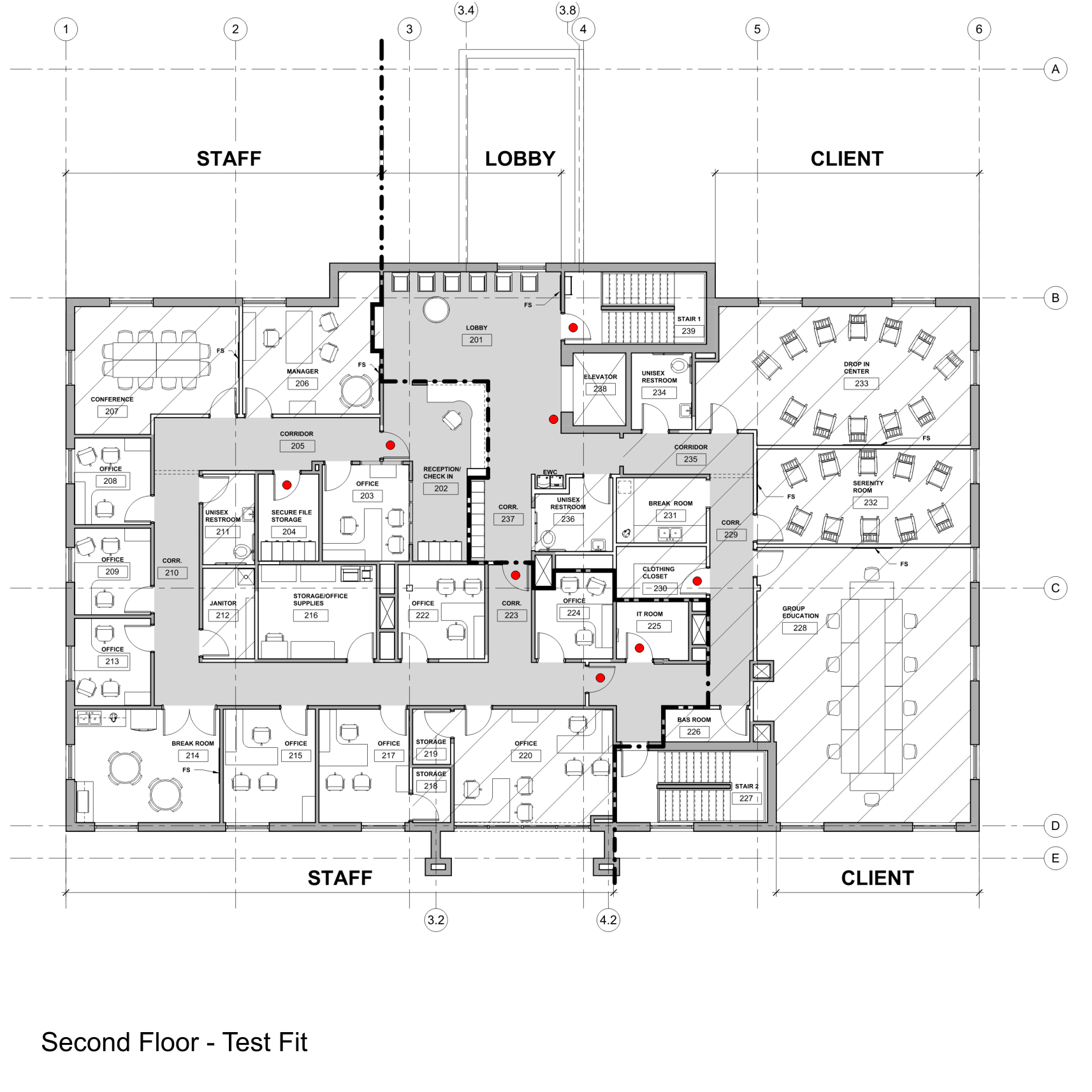
The Project was an Interior Renovation for the entire Second Floor and First Floor Lobbies of an existing 1989, Two-Story Building for County Community Support Service Programs. It includes Site Accessibility Improvements, Plumbing, Mechanical, Electrical and IT Security and Network Upgrades. Numerous Code and existing condition deficiencies were addressed.
Size: 7,000 sf.
Principal in Charge: Barbara D. Lane, AIA






